Terrain d’une surface de 450m2 dans petit lotissement.
Situation calme et vue dégagée.
Proche de commerce et du bassin d’emploi de chaspuzac
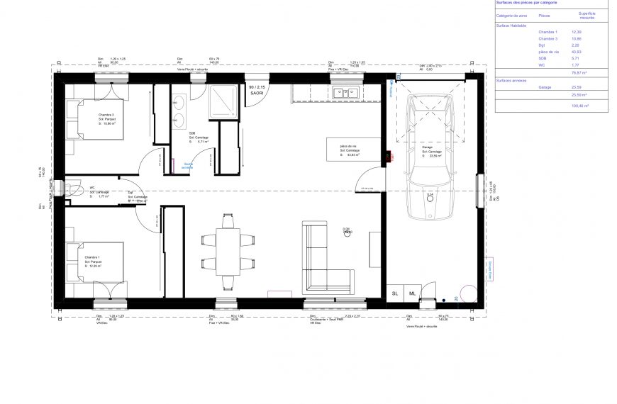
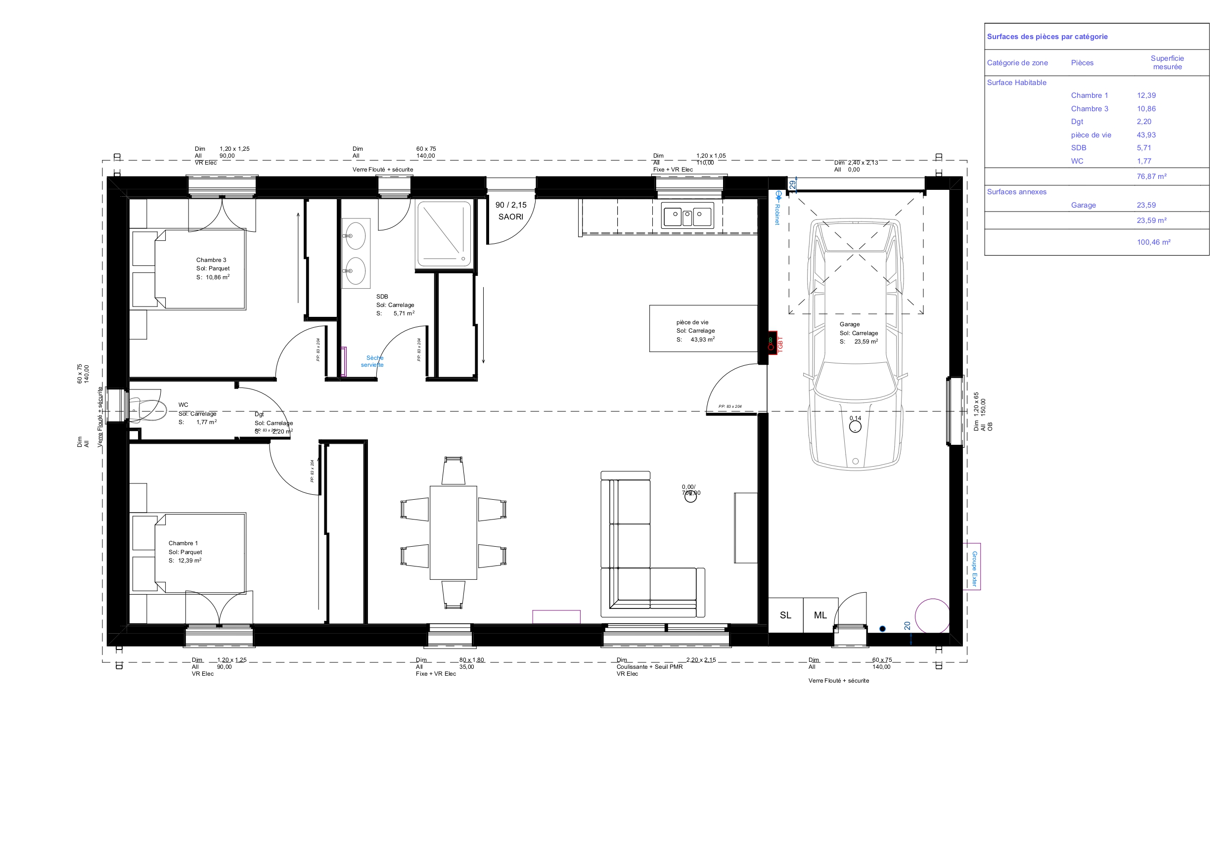
Cette maison de plain-pied de 76 m² a été pensée pour offrir un maximum de confort dans un format compact et ultra optimisé. Chaque mètre carré est intelligemment exploité afin de proposer un habitat fonctionnel, sans perte d’espace, tout en garantissant un excellent rapport qualité/prix, à partir de 144 000€.
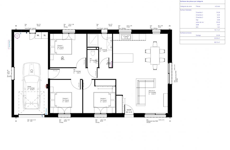
Son agencement modulable permet de s’adapter facilement aux besoins de chacun : que ce soit en version 3 pièces ou 4 pièces, elle
conserve une organisation fluide et agréable à vivre.
La pièce de vie, lumineuse et conviviale, constitue le cœur de la maison, tandis que l’espace nuit se décline selon vos attentes, avec des chambres confortables et bien proportionnées. Les équipements ont
été pensés pour allier praticité et confort au quotidien : salle de bains fonctionnelle, WC séparés, rangements optimisés et circulation facilitée dans l’ensemble du logement.
Le garage intégré de belle superficie vient compléter l’ensemble, offrant un espace de stationnement et de stockage appréciable.
Compacte, économique et évolutive, cette maison est une solution idéale pour un premier achat ou un projet maîtrisé, tout en
conservant la possibilité de personnaliser les espaces selon votre mode de vie.
Le prix s'entend "à partir de", hors options éventuelles, raccordement, VRD, fondations spéciales, reprofilage des terres, PPM, portes de placard, piscine. Se reporter à la notice descriptive. Garanties et assurances obligatoires incluses, y compris l'assurance Dommages-Ouvrage. L'adaptation au sol peut faire évoluer le prix.
Conditions de l'offre "paiement" : au lieu de payer au fur et à mesure de l'avancement du chantier. Sous condition du respect des plafonds de ressources et hors investisseurs.